Featured Projects
Ground-Up four-over-one Podium Building Structural and Foundation Design
Bergen County, NJ
Hudson Engineering was the Structural Engineer of record for a new multi-unit podium building being constructed in Bergen County, NJ. Our Engineers were responsible for the coordination and design of the building’s structural framing and foundations with a team of other professionals in this major development. Due to the building’s unique width and challenging site conditions, our team utilized advanced structural techniques to develop a resilient design that was efficient and delivered timely on an expedited schedule
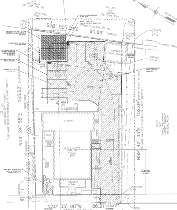
Site Plan for a Residential Home
Warren County, NJ
Hudson Engineering was engaged to perform the Site Civil Engineering services required to design additional parking for an existing home. The parking layout needed to include drainage, landscaping, and lighting requirements mandated by the municipality for approvals. Our Engineers developed the necessary design, site plan drawings, and calculation packages for the minor development that included an efficient stormwater collection system that utilized gravel to store and clean all runoff per state and municipal requirements.
Major Development Support of Excavation Design
Hudson County, NJ
As part of a new development in a tight urban property, a support of excavation (SOE) was required to protect crews and adjacent properties during the installation of foundations from 10ft to 15ft below grade. Hudson Engineering was engaged to perform the SOE design and provide continual engineering support during its installation. Due to the close proximity of hard bedrock, the SOE system used a combination of rock-socketed cantilevered soldier piles and a tie-back wall to successfully protect the excavation
Historic Building Basement Lowering and Underpinning Design
Brooklyn, NY
This historic brownstone townhouse featured an unfinished basement that the Owner wanted to have finished along with other improvements to open up the livable space. Hudson Engineering was responsible for the structural and foundation design to lower the basement by four feet, replace its center load bearing beams and install the necessary framing to remove the loadbearing wall supporting several stories above it. Our team worked closely with other professionals to develop an efficient design that ensured the stability of the historic building during construction in accordance with all NYC DOB requirements
Building Masonry Wall Stabilization and Remediation
Hudson County, NJ
Foundation work performed near the existing 4-story unreinforced masonry building had undermined its exterior masonry load bearing wall causing structural deficiencies and significant settlement. Upon being engaged, Hudson Engineering performed a rapid assessment of the structural and geotechnical deficiencies and developed an immediate shoring and stabilization plan including grout injection stabilization of underlying soils, carbon fiber reinforcement of the compromised wall and temporary steel bracing to ensure continued stability. In the second phase of this project, Hudson Engineering develop a helical underpinning design that permanently stabilized the building’s foundation and finalized its structural remediation







